
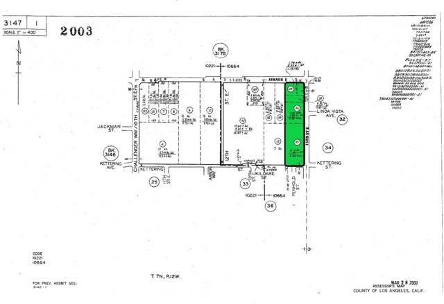
Entitlement-Positioned Residential Development – 8.69 Acres with Density Upside --- Four contiguous parcels totaling 8.69 acres with frontage along 15th St E from Avenue I to Kettering Street. The site offers a compelling opportunity for re-entitlement and tract development, supported by a split General Plan designation: approximately 4.18 acres of Medium Density Residential (MDR: 6.6–15 du/ac) and 4.51 acres of Urban Residential (UR: 2.1–6.5 du/ac)—allowing flexibility in product type, lot configuration, and overall yield. A previously approved Tentative Tract Map (TTM) for 38 single-family lots establishes a strong entitlement baseline. While the map has expired following the City’s upgrade to higher-density MDR zoning, it provides significant carry-forward value, including prior engineering studies, site planning, and a detailed record of municipal conditions of approval. This groundwork can materially reduce entitlement risk, inform updated yield scenarios, and accelerate the resubmittal process. Planning & Entitlement Advantages: • CEQA Positioning: Prior approvals and studies may support streamlined environmental review, with the potential for addendum or focused analysis rather than a full EIR, subject to City determination. • Known Development Standards: Existing conditions of approval offer clarity on grading, drainage, circulation, and off-site improvement requirements—reducing uncertainty during entitlement. • Utility & Infrastructure Context: Prior tract work provides insight into utility access points, capacity considerations, and likely off-site improvement obligations. • Improved Density Potential: Updated MDR zoning creates an opportunity to increase unit count beyond the prior 38-lot configuration while integrating required affordable housing components. • Phasing Potential: Parcel configuration and frontage may allow for phased development and flexible absorption strategies. Well-suited for builders and developers seeking a project with prior agency alignment, documented site constraints, and the ability to leverage existing due diligence to shorten entitlement timelines and move more efficiently toward final map approval and construction.