
Share on Facebook
Status: Active
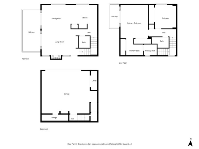
Welcome to the highly desirable Harbor Woods community in Newport Beach. This beautifully remodeled end-unit townhome offers 1,248 square feet of light-filled living space with 2 bedrooms and 2.5 bathrooms. Freshly painted and thoughtfully updated throughout, the home features a functional multi-level layout that provides great separation of space. The remodeled kitchen and bathrooms offer modern finishes, while the inviting living area is ideal for both everyday living and entertaining. As an end unit, the home enjoys added privacy, extra windows, and an abundance of natural light, creating a bright and open feel throughout. Additional highlights include air conditioning, a dedicated laundry room in the garage, a direct-access 2-car garage, and two private decks perfect for relaxing or entertaining. Residents of Harbor Woods enjoy resort-style amenities including a pool, spa, clubhouse, and beautifully maintained greenbelts. Ideally located near Fashion Island, top dining, shopping, and Newport’s world-class beaches, this home offers an exceptional coastal lifestyle. Rarely available, this end unit won’t last long!