
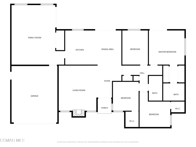
ATTENTION THOUSAND OAKS HOMEBUYERS! 22 Van Dyke offers you a rare opportunity to own an amazing newly remodeled SINGLE STORY home on a 12,631sf lot with 4 large bedrooms, an enormous bonus room, 2 remodeled bathrooms and indoor laundry in one of the area's most sought-after neighborhoods, the Horizon Hills Country Club neighborhood! It is a home with mountain and sunset views from the back yard and a super private lot. The home impresses with lots of light, upgrades galore, a modern feel and everything you could want and need. There is a large living room with fireplace. The brand new chef's kitchen with island blends contemporary design with everyday functionality, ideal for entertaining, family living, or simply enjoying a space that feels both elevated and effortless. The bonus room provides endless possibilities for fun. The entire home features top of the line 30 year commercial grade flooring! The sprawling backyard offers a private, serene setting perfect for entertaining, relaxing, and creating memories. It is ideally situated to take full advantage of the Horizon Hills Country Club with swimming, spa,tennis, sports and more! There are no homes either across from or behind this unique property. This is a very desirable, quiet neighborhood close to schools, shopping, hospital and easy freeway access. Homes in this area rarely come to market, and none offer this level of finish and condition. Don't let this one get away!