
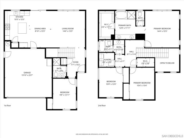
Welcome to this 4-bedroom, 3-bath home in the Vista Verde community of Otay Ranch. With one bedroom and one full bath on the main level, the floor plan offers flexibility for guests, multi-generational living, extended family, or a home office. Tile flooring runs throughout the main downstairs living areas, and the kitchen features granite countertops and stainless steel appliances. Upstairs, the primary suite includes dual sinks, a walk-in closet, and a separate tub and shower. Additional highlights include owned solar, an interior laundry room, and a location approximately one block from the community pool. Vista Verde residents enjoy access to a pool, barbecue area, and parks, with convenient proximity to shopping, dining, and the 125 toll road.