
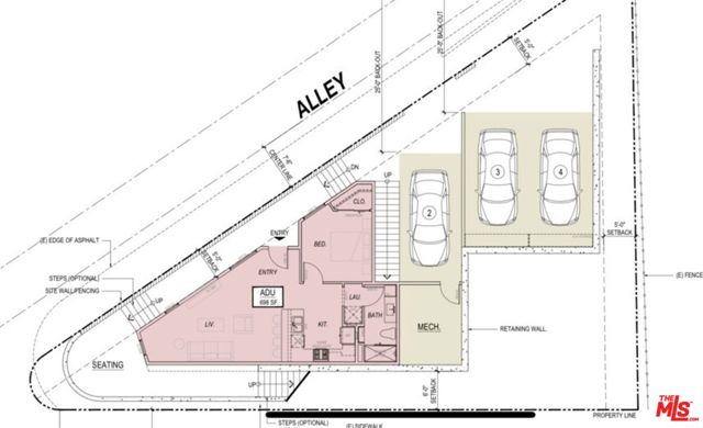
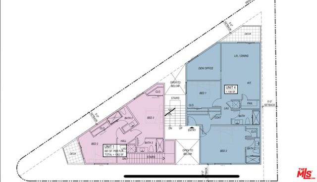
RTI development opportunity in a prime Central Los Angeles location. This property comes with Ready-To-Issue plans for a 5-unit residential project, consisting of 4 units plus 1 Accessory Dwelling Unit (ADU).The approved plans include a 2-story building with basement, totaling approximately 5,291 square feet, designed with an efficient and desirable unit mix. The layout includes a combination of one- and multi-bedroom units, as well as a dedicated ADU, providing flexibility for rental income. Project features include: Roof deck and open space areas with 3 carport spaces and 1 enclosed garage and Modern configuration suitable for today's rental market! Located in an R4-zoned area (Central City West), the property is positioned near Echo Park, Silver Lake, and Downtown Los Angeles, with convenient access to major employment centers, transportation, and amenities.This is an ideal opportunity for developers or investors to move forward with construction without the time and uncertainty of the entitlement process.Plans and additional documentation available upon request.