
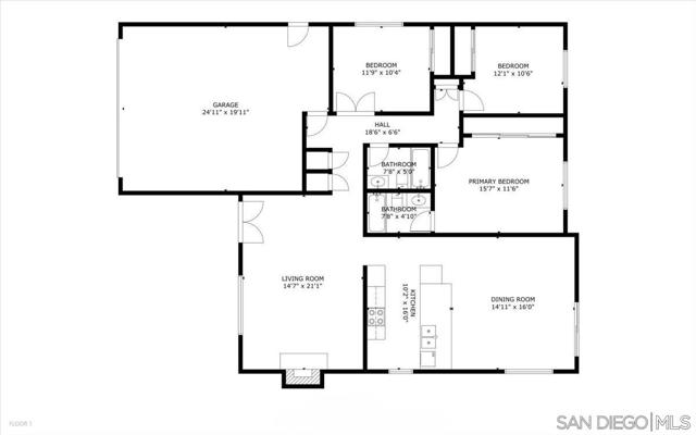
Ideally positioned along a tranquil canyon ridge large lot near the end of a quiet street, this single-level residence captures sweeping northwesterly views of rolling canyons and distant mountains. A light-filled living room welcomes you in, centered around a warm brick fireplace that creates an inviting focal point. The thoughtfully designed galley-style kitchen offers abundant cabinetry, generous breakfast bar seating, updated recessed lighting, and seamless flow into a spacious, versatile dining area—perfect for intimate dinners or effortless entertaining. Step outside to a private covered patio that extends your living space into the open air, where expansive views and vibrant sunsets become part of your everyday backdrop. The additional yard space provides room for gardening, recreation, or play. The primary suite features an oversized closet and ensuite bath with a walk-in shower, while two secondary bedrooms and a well-appointed guest bath complete the home. Additional highlights include solar, central A/C, recessed lighting, and ceiling fans. Ideally located near the hiking and biking trails of Lakeside Linkage County Preserve, with convenient freeway access and nearby shops and dining, this home offers both serenity and accessibility.