
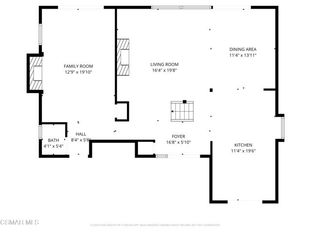
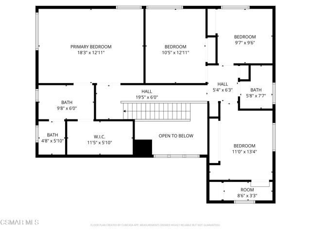
Welcome to this exceptional 4 bed, 3 bath home offering a thoughtful 2,080 sq ft layout embraced by nature on all sides. Set among majestic California oak trees and natural landscaping, this property feels like a private retreat with shade, filtered sunlight, and beauty from every angle. The expansive yard features multiple outdoor gathering spaces, including a secret meditation platform, perfect for quiet getaways and serene moments. Inside, the heart of the home is the updated kitchen, beautifully appointed with a separate refrigerator and freezer, granite countertops, unique pillowed tile backsplash, and a large island ideal for prep and serving. Exceptional lighting illuminates the space, which flows seamlessly to a front courtyard patio perfect for morning coffee, outdoor dining, and conversation. The living and dining rooms offer open vistas to the tree canopy and are flooded with natural light. Custom Craftsman-style bookcases enhance the warm and inviting feel, creating a space perfect for relaxing and entertaining. Escape to the family room, complete with a brick fireplace and adjacent powder room ideal as a cozy retreat or versatile bonus space. With so many optional uses, this room could easily become a playroom, man cave, or large home office just steps from the kitchen. Upstairs you'll find four sunlit bedrooms, including a spacious primary suite with soaring ceilings, a walk-in closet, and a newly updated step-in shower a private haven to relax and unwind. The outdoors are nothing short of spectacular and peaceful. A converted garden shed now serves as a charming and functional outdoor office, playroom, or ''she-shed,'' adding even more versatility to this unique property. Additional features include a three-car garage, gleaming wood-like flooring, dual-pane windows and sliders, newer heating and air conditioning, a whole-house fan, fresh exterior paint, and fire-hardening soffits added to the roofline to help protect your investment. With no house behind, you'll feel worlds away, yet enjoy close proximity to shopping, schools, and parks. This tranquil and thoughtfully upgraded home is truly a hidden gem and a must-see!