
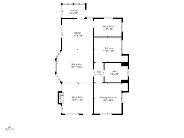
Welcome to 400 Flower Street in Pasadena. This Craftsman-style bungalow, built in 1912, offers 3 bedrooms and 1 bathroom, along with a detached artistic studio and a detached 1.5-car garage. The home is situated on a spacious lot with professionally landscaped grounds. The property has been completely upgraded while maintaining original character, including restored hardware and fixtures. Interior improvements include luxury vinyl flooring, all new interior and exterior paint, double-pane windows, copper plumbing, new water heater, and central HVAC. The remodeled kitchen features a peninsula with quartz countertops, subway tile backsplash, wood-grain slimline shaker cabinetry, floating shelves and LG Studio appliances. The bathroom includes a separate soaking tub, a walk-in shower, and a wood-grain vanity. The detached studio provides flexible additional space suitable for a variety of uses. Conveniently located near local amenities, dining, and transportation.