
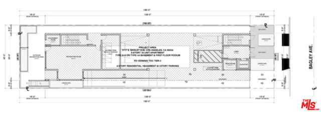
Exceptional development opportunity in the heart of Culver City. The site is ideally located just minutes from Downtown Culver City and a short three-minute walk to Ivy Station and the 8777 Washington complex, fully leased by Apple. Projected gross income is a conservative $507,612 per year, with three units designated for Very Low Income housing. A rare chance to build in one of LA's most vibrant and rapidly growing neighborhoods. The property is currently configured as a duplex, with one unit delivered vacant and the second unit occupied at $2,380 per month. A great opportunity for investors or developers seeking immediate income with future development potential.