
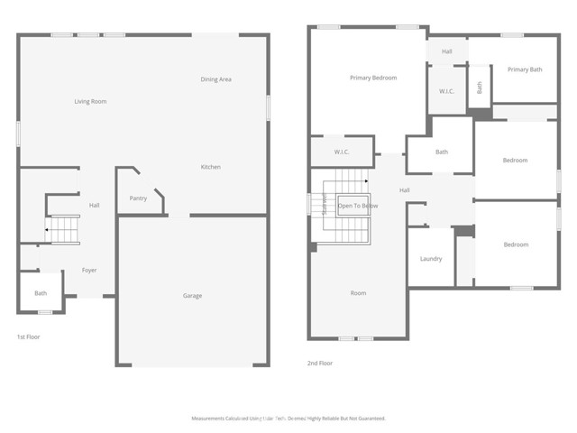
Welcome to this stunning three bedroom, two and a half bath home located in the highly desirable Anaverde Estates community of West Palmdale. Built in 2016, this spacious 2,202 sq. ft. residence sits on a 6,727 sq. ft. lot and offers a perfect blend of comfort and modern living. Step inside to find new interior paint and plush new carpet throughout, giving the home a fresh and inviting feel. The open concept floor plan features a large family room that flows seamlessly into a gorgeous kitchen with a center island, ample cabinetry, and plenty of counter space ideal for cooking and entertaining. Upstairs, you’ll find a convenient laundry room and three well sized bedrooms, including a comfortable primary suite with a private bath and walk in closet. The home also offers a two-car garage, a spacious backyard and beautiful community parks.