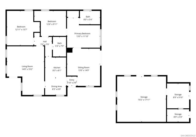
Roof, windows and water heater replaced. Exterior freshly painted. So much potential! Main house is 2 beds plus 1 bath. There is an attached/shared space that includes an additional bedroom, living room, kitchenette and full bathroom. Review Floorplan.
500 La Terraza Blvd Suite 150 Escondido CA 92025 Blue Horizon Realty and Lending, INC 01942781 team@bluehorizonca.com 7602374092 32.748178 -117.145937 https://www.royacdn.com/unsafe/smart/Site-48750597-fad4-4739-909d-ca390a15c8e5/theme3/roya_com_130.png 500 La Terraza Blvd Suite 150 Escondido CA 92025 https://goo.gl/maps/82D4UX4TkJ82