
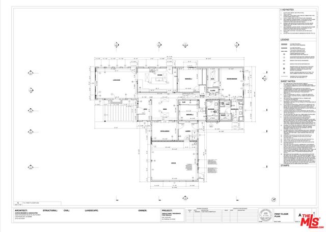
Start Building NOW on 1/3+ acre lot. This sale includes LA County approved building plans and RTI Permits for a 2,500SF luxury mid-century inspired modern home on a private road. Plan includes 3 Bed/2 Bath, Laundry Room, Office, Breakfast Nook, and fireplace. Several outdoor spaces all with commanding views overlooking Pasadena, downtown LA, and out to the Pacific Ocean towards Catalina Island. The current plans were created by the owner and Aaron Brumer Architects - these can be customized to your liking, a larger home is possible. The original structure was lost in the Jan. 2025 Eaton Fire. The house and it spectacular views was previously nominated for HGTV design of the year, appeared in TV advertisements, and served as a backdrop for many photo and video shoots. Photos available on request. The lot has been cleared, Phase 1 & 2 cleanups have been completed. The buyer should conduct due diligence regarding any additional future building requirements, including consulting with LADBS and relevant agencies for site clearance, hazardous material removal, and environmental remediation. All utilities (except Sewer) were previously accessible & buyer will want to verify restoration requirements. This is a "DRIVE-BY ONLY LISTING". Do not enter the property due to current safety protocols.