Property Detail

6010 Turnberry Dr

Dublin CA 94568

Share on Facebook

$3,758,000

Status: Active

Property Details

Description

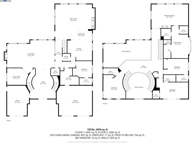
Rare Atherton Floor Plan in the exclusive gated Pinnacles community at Dublin Ranch Golf Course, offers a luxurious 5,585sqft home on a 10,800sqft lot. Ideal home for large families and entertaining guests. Built by Toll Brothers, this magnificent residence boasts five spacious bedrooms, each with its own full en-suite bathroom and a private library/ home office. The dramatic two-story foyer features an elegant circular dual staircase, while the formal dining and living room area is bathed in light from soaring two-story ceilings. Only model with back stairs which leads to an open concept floor plan with kitchen and family room looking out to a private covered patio and backyard. The kitchen is a culinary delight for home cooks with a large island upgraded granite counters, double ovens, gas cook range. Private master bedroom with a fireplace, huge master bathroom suite complete with two vanities, a jetted tub, a walk-in shower, and his and her spacious walk-in closet. Located near the SF Premium outlets, dining, top-rated schools, Bart, and easy access to the freeway. HOA amenities includes large community pool and tennis courts.

Map Location

  • Log in
  • ×