
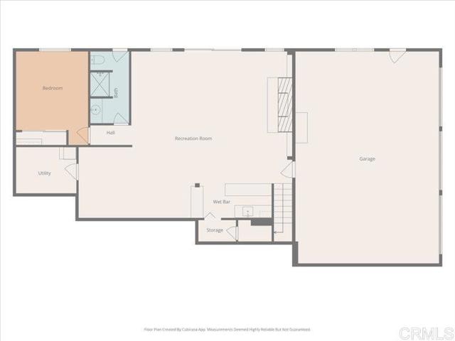
If you want a secluded property with a country feel, but close to shopping, schools, and easy freeway access to all of San Diego County — look no further! This stunning 3-bedroom, 4-bath multigenerational home offers incredible flexibility and unique features rarely found at this price. The main home spans two levels with two fireplaces, and a 3-car attached garage. The downstairs area is thoughtfully designed as a self-contained in-law suite or multigenerational living space, complete with its own bedroom, full bath, and a wet bar easily convertible to a full kitchenette — ideal for extended family, aging parents, or adult children. Dual heating and AC units and paid-in-full solar panels, ensure year-round comfort for everyone. A full-length deck and patio area, accessible from sliders on both levels, offer outdoor living with privacy and stunning views. Adding even more value is a detached 52’ x 28’ building with 4 garage stalls and an office/bathroom — perfect for a home business, workshop, or extra storage. Come see it — the possibilities are endless!