
Share on Facebook
Status: Active
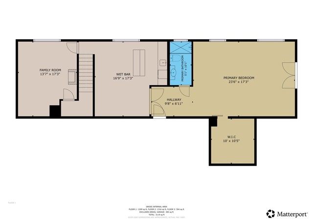
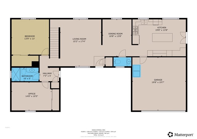
Set on a quiet, secluded street with a cul-de-sac feel in Woodland Hills, this fully renovated 3-story home offers 3,332 sq.ft. of flexible living space and a highly functional layout. With 6 bedrooms and 4 bathrooms, each level features two bedrooms, creating a versatile setup for multi-generational living, guests, or work-from-home needs. An additional approximately 1,000 sq.ft of storage space on the ground level provides a potential for an ADU conversion or addition. The main level welcomes you with high vaulted ceilings, an open living and dining area, and a spacious kitchen centered around a large island with seating. Custom cabinetry, granite countertops, and stainless steel Viking appliances complete the space. Two bedrooms and two bathrooms are also located on this level. The lower level is designed as a private primary suite, featuring an oversized bedroom with double-door entry, a custom walk-in closet, and direct access to a private deck. A bar/entertaining area and an additional room, currently used as a family room, offer added flexibility. The upper level includes two additional bedrooms, a bathroom, and a private balcony. Outdoor spaces include multiple decks, a front patio with a gazebo, and newly installed vinyl privacy fencing, creating a natural indoor-outdoor flow. An additional approximately 1,000 sq.ft of storage space on the ground level provides a potential for an ADU conversion or addition. Extensive upgrades include a newer roof, two HVAC units, tankless water heater, smart home features (Lutron system, smart entry door lock, Nest thermostat), upgraded garage with epoxy flooring and built-in storage, EV Tesla chargers, and more. Conveniently located just minutes from Ventura Boulevard, Westfield Topanga, and Topanga Village, with easy access to the 101-fwy and Mulholland Drive, as well as nearby hiking trails and scenic hillside surroundings, this move-in ready home offers a strong balance of privacy and accessibility.