
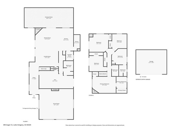
Fresh paint in living room, entrance way hallway and primary bedroom and two other bedrooms. Also new flooring in office. Stunning 5-Bedroom, 4-Bath Mountain Home Near Lake Gregory. This exceptional 5-bedroom, 4-bath residence offers a perfect blend of comfort, space, and mountain charm. The property features RV parking, space for up to six additional vehicles, and an oversized two-car garage. The beautifully landscaped exterior includes a tranquil pond, built-in outdoor BBQ, fireplace, and a versatile outdoor room ideal for storage or additional living space. Inside, the grand front room impresses with vaulted ceilings, a dramatic wall of windows, and a cozy fireplace. A large room just off the entry, currently used as a study, can easily serve as a main-level bedroom. The spacious kitchen boasts ample counter space and a walk-in pantry, opening to a dining area and expansive living room with yet another fireplace—perfect for entertaining. Multiple outdoor living areas take full advantage of the mountain views, including three separate decks and an enclosed patio currently used as a game room. Upstairs, the primary suite features dual closets, its own fireplace, and a luxurious bathroom with a walk-in shower. Four additional bedrooms provide generous space; two include private decks with stunning views, and one offers its own ensuite bath. Whether as a full-time residence, a private retreat, or a vacation rental, this home delivers versatility and mountain living at its finest. Conveniently located just minutes from town and Lake Gregory, with easy commuter access, it’s the ideal balance of escape and convenience.