
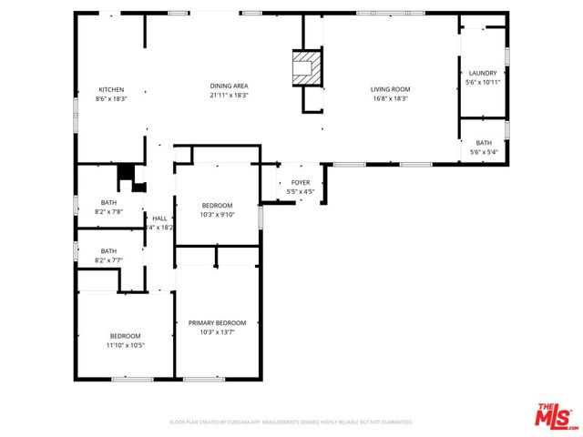
This privately gated, renovated single-story home offers comfort, functionality, and privacy on a generous 7,630 sq ft flat lot in a quiet Canoga Park neighborhood. With 3 bedrooms, 2.5 bathrooms, and 1,671 sq ft of living space, the open layout is spacious and versatile, ideal for everyday living as well as entertaining. Engineered oak flooring runs throughout the main living areas, creating a cohesive and timeless feel, while the entry features slate flooring and the kitchen, bathrooms, and laundry room are finished with tile. All lighting fixtures throughout the home have been thoughtfully updated. The living room features cathedral ceilings, abundant natural light, and generous seating space, along with a convenient powder room and pantry/laundry room. The dining area includes a wood-burning fireplace and French doors that open to the backyard - perfect for indoor-outdoor flow. The dining space also connects seamlessly to the remodeled gourmet kitchen, complete with quartz countertops, stainless steel appliances, a breakfast bar, and ample cabinet storage. Three lovely bedrooms down the hallway offer flexible living options and share two beautifully appointed bathrooms. The primary bedroom includes a ceiling fan for added comfort. Storage systems are installed in two bedroom closets as well as the entry closet. The expansive, flat backyard is already enhanced with mature landscaping and a fire pit, offering a welcoming outdoor retreat with room to further customize for entertaining, outdoor living, gardening, or play. The property features attractive curb appeal highlighted by a large, flat grassy front yard. Additional highlights include a two-car carport with extra driveway parking, copper plumbing, a brand-new roof installed in 2025, a natural gas full-house generator, brand-new water heater and garbage disposal, new driveway and side-yard gates, added attic insulation, a secure package mailbox, and thoughtful storage upgrades throughout. A well-maintained home offering meaningful improvements, flexible living spaces, and an easy, desirable single-story layout designed for comfortable everyday living.