
Share on Facebook
Status: Active
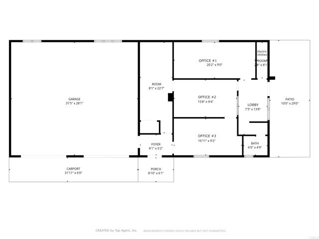
Prime Light Manufacturing–zoned opportunity located in the highly sought-after Olive Drive industrial pocket of Spring Valley—an area known for long-term stability, strong tenant demand, and a well-established base of manufacturing and storage users. Set on 17,886 sq. ft. (.41 acre) of completely fenced, flat land, this property features two separately fenced buildings, each currently individually rented, offering built-in income and flexible exit strategies for future owners. Building 1 (Est. 1,764 sq. ft.) • Professional 4-car garage setup • Three offices + one bath • Parking/yard space for approx. 30 vehicles • Ideal for automotive, service trades, light manufacturing, or equipment storage Building 2 (Est. 798 sq. ft.) • Detached 2-bedroom / 1-bath house with full kitchen • 1-car attached garage • Space for approx. 10 additional vehicles • Excellent for on-site manager housing, office conversion, or continued rental income Both structures are older but in working, usable condition with no known roof issues after the most recent heavy storms. With M-zoning, flat topography, and excellent proximity to other successful industrial operators, the property is perfectly positioned for an investor, owner-user, or hybrid commercial/residential user. A rare chance to acquire two rentable structures, strong parking capacity, and flexible industrial zoning corridor. Shown by appointment only. Do not disturb occupants.