
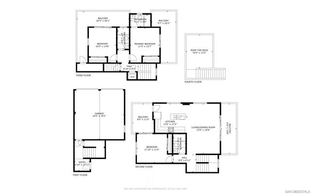
Introducing the Fantasket 3 Townhomes, a sleek and modern coastal Cape Cod–style new construction development featuring three luxury residences on the ocean side of Mission Beach. Built by a highly reputable local builder and backed by a full builder warranty, each 3-bedroom, 3-bath home spans three thoughtfully designed levels, offering the ultimate in low-maintenance, modern beach living. The first floor includes a welcoming front porch entry and a direct-access, side-by-side two-car garage. The second floor features an open-concept living space with two balconies, a contemporary kitchen with stainless steel appliances, a dining area, a laundry closet, and a bedroom with a full bath. Upstairs, the third floor showcases a stunning primary suite with a spa-inspired bathroom and wraparound balcony, along with a secondary suite featuring its own private balcony. The private rooftop deck captures 360° panoramic views of Mission Beach, the Pacific Ocean, and Mission Bay—ideal for entertaining or soaking in the sunsets. Additional highlights include Atlantis waterproof luxury vinyl plank flooring, designer finishes, wainscoting detail, central heating and A/C splits, and in-unit laundry. Located just steps from the sand and walking distance to Belmont Park, Bonita Cove, Fit Athletic Club, The Plunge, and top local dining, this home is perfectly suited for a full-time coastal lifestyle, vacation retreat, or premium investment property. This is a rare opportunity to own a brand-new, modern coastal home in one of San Diego’s most desirable beachfront communities.