
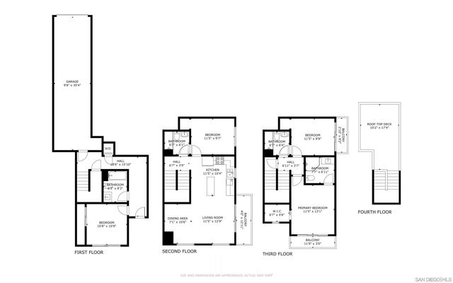
Introducing the Fantasket 3 Townhomes, a sleek and modern coastal Cape Cod–style new construction development featuring three luxury residences on the ocean side of Mission Beach. This is an exclusive opportunity, with the next door home already pending! Built by a highly reputable local builder and backed by a full builder warranty, this 4-bedroom, 4-bath home spans three thoughtfully designed levels and offers the ultimate in low-maintenance, luxury beach living. The first floor features a versatile bedroom or ideal home office with direct front patio access, a full bath, laundry closet, and a direct-access tandem two-car garage. On the second floor, enjoy an open-concept living space with a balcony, a modern kitchen with stainless steel appliances, a dining area, and a bedroom and a full bath. The third floor showcases a primary suite with a spa-inspired bathroom and private balcony, along with another spacious ensuite bedroom that also enjoys its own balcony. A private rooftop deck crowns the home, offering 360° panoramic views of Mission Beach, the Pacific Ocean, and Mission Bay—ideal for entertaining or sunset relaxation. Additional highlights include Atlantis waterproof luxury vinyl plank flooring, designer finishes, wainscoting accents, central heating and A/C splits, and in-unit laundry. Just steps from the sand and walking distance to Belmont Park, Bonita Cove, Fit Athletic Club, The Plunge, and popular dining destinations, this townhome is perfectly suited for full-time coastal living, a vacation retreat, or a premium investment property.