
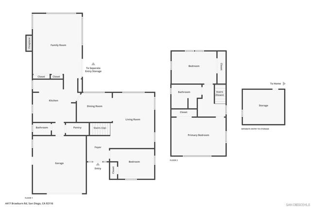
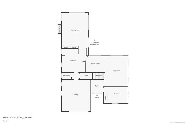
SELLERS TAKING TIME w/ FAMILY FOR HOLIDAYS. DO NOT CALL. Reach out to Listing Agent with serious inquires. Something special is tucked away in North Kensington… Quiet canyon, classic charm, and big views! Privately perched along a tranquil canyon rim on Braeburn Rd, this 1948 gem sits on a peaceful cul-de-sac. Featuring 3 bedrooms, 2 bathrooms, solar panels, and a bonus family room, it offers that rare mix of character and comfort. Sweeping canyon vistas create a seamless connection to nature while still keeping you just moments from the lively buzz of Adams Avenue. Inside, natural light pours through every window, highlighting the original hardwood floors and classic details. The remodeled kitchen—complete with black-and-white checkered floors—flows gracefully into the grand living room, where the real views steal the show. It’s the perfect spot for quiet morning coffee or effortless entertaining. Step outside and the magic continues. Terraced patios give you multiple spaces to relax or host friends, plus there’s even bonus storage tucked below. A rare opportunity to own one of Kensington’s most picturesque canyon homes—where timeless character meets serene, natural beauty among the trees.